颗粒后喷涂机

功能特点:
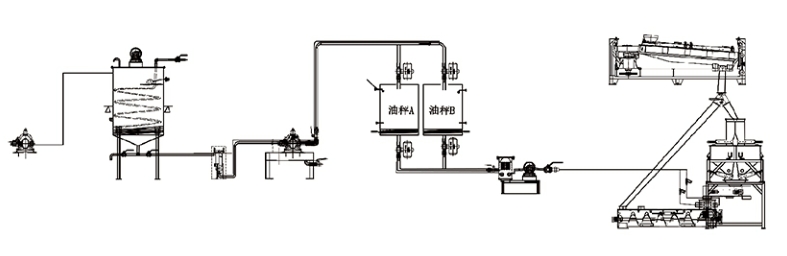
思贝德自主研发的称重式颗粒后喷涂广泛应用于饲料行业中,不仅可以喷涂油脂、酶制剂、维生素、抗氧化剂、氨基酸等液体,也可以喷涂沉性、浮性膨化料。通过自动控制系统,实时分别检测两秤斗及两油秤的减重数量,根据配方添加比例,实时自动计算出油泵频率,使油严格按照来料量及喷涂比例添加,做到精确添加,计量精确,工作稳定,油泵采用变频控制,实时反馈效果好,添加精确。

产品特点

42-1.jpg


■ 全自动控制系统,与来料量联动;

■ 可一屏多机控制,屏可置于中控室,傻瓜式操作;

■ 高精度皮带秤计量系统,确保来料量精确测控;·

■ 独特的皮带布料结构,把物料整理成均匀瀑布状;

■ 进口高精密液体流量计,配合变频泵,精确计量喷涂量;

■ 多层多喷嘴设计,喷涂量大,喷涂均匀;

■ 叶带式螺旋搅拌装置,确保颗粒无花料。



42-2.jpg